3 октомври 2014



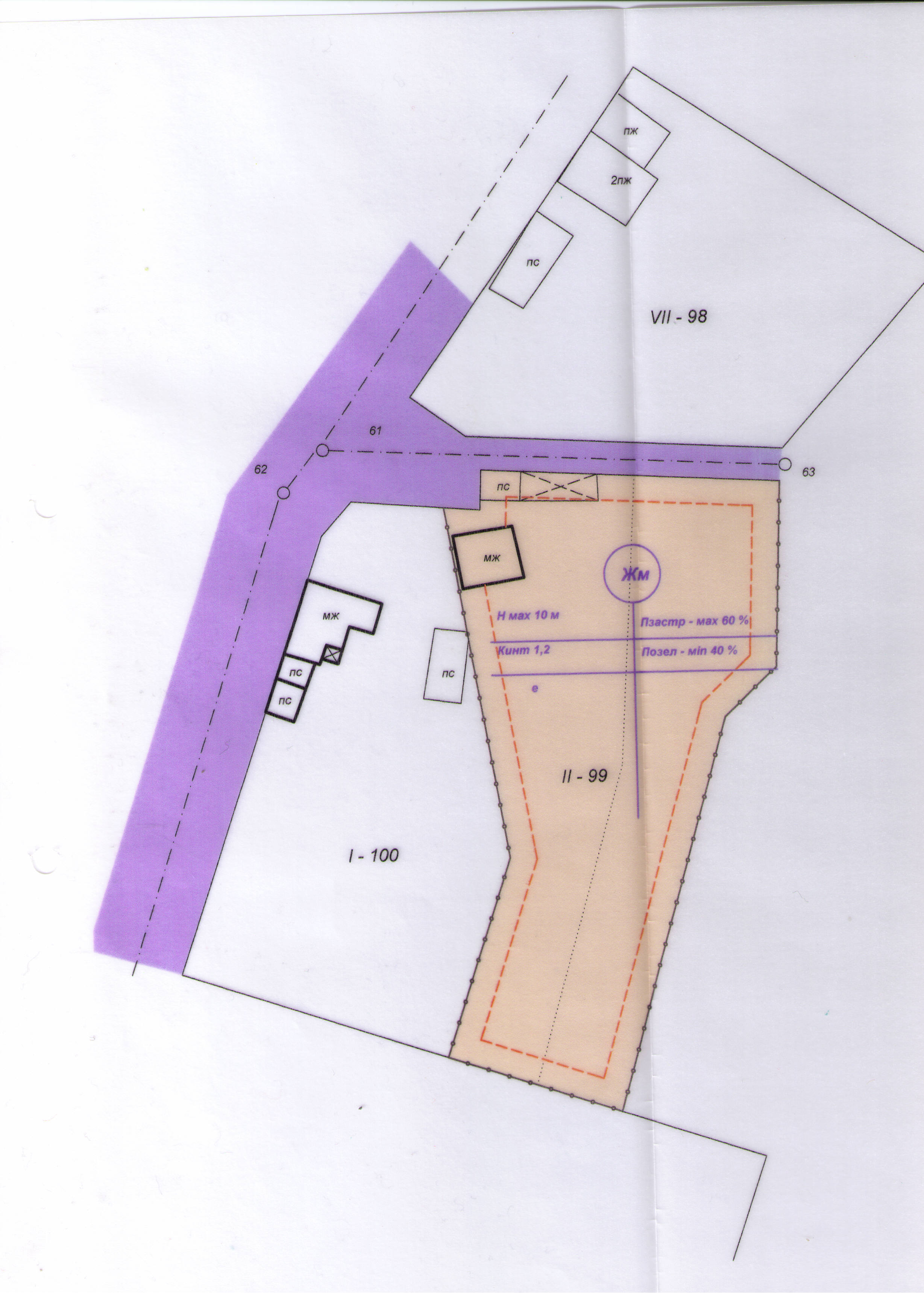
Одобрен Подробен устройствен план – план за регулация и застрояване /ПУП – ПРЗ/ на част от кв. 28, УПИ ІІ-268, по плана на с. Трънито, Община Габрово
2 октомври 2014 Обявление №АУ-02-10-53#1/07.10.14 г. на Заповед №1971 от 07.10.14 г. на Кмета на Община Габрово, за одобрен ПУП-ПРЗ за частично изменение на ЗРП за част от кв. 17 по плана на с. Кметовци, Община Габрово.
9 октомври 2014
2 октомври 2014 Обявление №АУ-02-10-53#1/07.10.14 г. на Заповед №1971 от 07.10.14 г. на Кмета на Община Габрово, за одобрен ПУП-ПРЗ за частично изменение на ЗРП за част от кв. 17 по плана на с. Кметовци, Община Габрово.
9 октомври 2014